Finished projects

«DniproPAP»

«DniproPAP»

Место реализации проекта: Ukraine, Dnepropetrovsk, 2004
Компания-клиент: Company «DniproPAP»

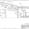
Commissioned a complex drying paper HDC-900 with a gas Yankee hood in the Yankee cylinder Ø2500mm. Includes Yankee hood, air ducts, gas stove, fans, system automation.


Фотогалерея проекта